Cortizo COR 70 Hoja Oculta es la elección de los arquitectos para proyectos de estilo minimalista. El nombre "Hoja Oculta" significa literalmente "hoja escondida". En este sistema, el perfil de la hoja queda oculto tras el marco, por lo que desde la calle solo se ve el fino borde del perfil con una anchura de apenas 66 mm. Esto crea un efecto visual único: las partes fijas y practicables de la ventana lucen exactamente iguales, proporcionando una simetría perfecta y una limpieza de líneas en la fachada.
Pero aquí el diseño trabaja de la mano con la tecnología. Gracias a la reducción de la parte visible del perfil, la superficie del acristalamiento aumenta, y entra en la estancia entre un 15-20% más de luz natural en comparación con las ventanas estándar. Al mismo tiempo, el sistema conserva todas las ventajas de la plataforma de 70 milímetros con rotura de puente térmico: retiene muy bien el calor, no deja pasar el ruido exterior y posee una alta rigidez, permitiendo crear elegantes estructuras panorámicas.
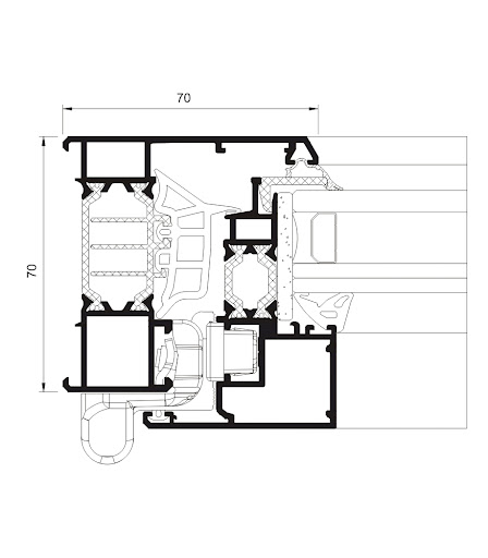
Especificaciones Técnicas
Detalles
Estética de invisibilidad. Sistema innovador de aluminio con "hoja oculta": desde el exterior solo se ve el marco, haciendo indistinguibles las partes practicables y fijas de la ventana, y aumentando la superficie de acristalamiento.
Parámetros constructivos del sistema:
- Profundidad de montaje: 70 mm.
- Tipo de sistema: Hoja Oculta — la hoja es visualmente invisible desde el exterior.
- Ancho visible del perfil: Solo 66 mm (desde la calle), uno de los mejores valores del mercado.
- Aislamiento térmico: Tecnología RPT con puentes térmicos de poliamida de 35 mm de ancho, reforzados con fibra de vidrio.
- Material: Aleación de aluminio 6063 T5 de primera fusión.
- Sellado: Sistema de triple junta (exterior, interior y central) para máxima hermeticidad (clase A).
- Espesor del perfil: 1,9 mm (resistencia aumentada).
Posibilidades de acristalamiento:
- Espesor máximo de acristalamiento: hasta 40 mm.
- Tipos de acristalamiento: Vidrios de cámara simple o doble de alta eficiencia energética, vidrio templado.
Dimensiones máximas y acabados:
- Dimensiones máximas de hoja: Anchura hasta 1300 mm, Altura hasta 2400 mm.
- Peso de hoja: hasta 100 kg.
- Opciones de color: Cualquier color RAL, anodizado, sublimación "imitación madera", recubrimiento antibacteriano. Disponible "Bicolor".
Características certificadas:
- Aislamiento térmico del perfil (Uf): desde 1,7 W/m²K.
- Aislamiento térmico de la ventana (Uw): hasta 1,0 W/m²K (con acristalamiento Ug=0,6).
- Estanqueidad al agua: Clase E1200 (excelente protección contra lluvias).
- Permeabilidad al aire: Clase 4.
- Aislamiento acústico: hasta 44 dB.
Diseño
Efecto de acristalamiento continuo
Luz
Máximo de luz natural
Confort
Alto aislamiento térmico
Cortizo COR 70 Hoja Oculta
Estética de invisibilidad. Sistema innovador de aluminio con "hoja oculta": desde el exterior solo se ve el marco, haciendo indistinguibles las partes practicables y fijas de la ventana, y aumentando la superficie de acristalamiento.
Más Ideas e Inspiración
Estos son algunos ejemplos de nuestro trabajo con el perfil Cortizo COR 70 Hoja Oculta. Toda esta inspiración es para usted y solo para usted.
Estamos trabajando en mantener los datos actualizados. Contáctenos si necesita materiales actualizados.
Opciones de Financiación
Disfrute de su compra ahora y páguelo a plazos utilizando nuestros servicios de financiación.
Más detallesNo Olvide Añadir
Elementos adicionales y accesorios que harán su hogar aún más confortable
Mosquiteras
Manillas con Cerradura
Laminación
Elementos Decorativos
Compare con Perfiles Similares
Soluciones alternativas de otros fabricantes
Cortizo COR 60
Cortizo COR 70 Industrial
Cortizo COR 80 Industrial
Schüco AWS 65
Schüco AWS 75.SI+
Schüco AWS 75 PD.SI
Dejar una reseña
Reseñas de clientes
Descubra lo que la gente dice al respecto
Aún no hay reseñas. ¡Sea el primero!
FAQs
Preguntas Frecuentes sobre Cortizo COR 70 Hoja Oculta
¿Qué es "Hoja Oculta" y para qué sirve?
Hoja Oculta significa literalmente "hoja escondida". En las ventanas convencionales se ve el marco y dentro otro marco (la hoja). Aquí la hoja está oculta tras el contorno exterior del marco. Es una solución puramente estética que hace las ventanas más modernas, sobrias y aumenta la superficie de vidrio.
¿Son estas ventanas mucho más finas que las normales?
Visualmente, sí. La parte visible del aluminio es de solo 66 mm, mientras que en las ventanas estándar de plástico o aluminio antiguo el ancho del travesaño puede alcanzar 100-120 mm. Esto aporta un aumento sustancial de luz, especialmente en huecos de ventana pequeños.
¿El aislamiento térmico es diferente al del COR 70 normal?
Las características son muy similares, ya que se utiliza la misma base (profundidad de 70 mm y puente térmico de 35 mm). Sin embargo, debido a la hoja oculta, el espesor máximo del acristalamiento está limitado (hasta 40 mm frente a 55 mm del Industrial), por lo que la selección de acristalamientos extra gruesos es algo menor.
¿Es más difícil limpiar estas ventanas?
Al contrario, es más fácil. En el exterior no hay saliente de la hoja donde normalmente se acumula suciedad y polvo. La superficie lisa del marco y la mínima cantidad de resaltes hacen que el mantenimiento de las ventanas sea rápido y sencillo.
¿Cómo se abre una hoja oculta?
Desde el interior, la ventana tiene el aspecto de una normal, con hoja visible y manilla. Se abre igual que cualquier otra ventana oscilobatiente. El secreto de la "invisibilidad" solo funciona cuando se mira desde la calle.
¿Afecta la construcción oculta a la seguridad?
La hoja oculta incluso aumenta la resistencia al robo, ya que desde el exterior no hay hueco visible entre la hoja y el marco que se pueda forzar con una herramienta. El sistema es totalmente compatible con herraje antirrobo, proporcionando una protección fiable del hogar.









