Kömmerling Xtrem 76 AD es la evolución de la popular serie 76, desarrollada específicamente para regiones con alta actividad solar como España. La composición del PVC incluye estabilizadores especiales de clase S que previenen la deformación del perfil bajo calentamiento extremo. El sistema con profundidad de montaje de 76 mm proporciona un excelente aislamiento, manteniendo el frescor interior y reduciendo los gastos de aire acondicionado.
Los marcos finos permiten entrar más luz mediterránea, mientras que dos juntas de alta calidad protegen eficazmente contra el polvo y el ruido. Es el «estándar de oro» para quienes buscan calidad alemana adaptada al sol español.
Especificaciones Técnicas
Detalles
Opción universal para el sol español. La composición especial del perfil no teme al calor y no amarillea con el tiempo. Es el «punto medio» para quienes necesitan ventanas alemanas fiables sin pagar de más por opciones innecesarias.
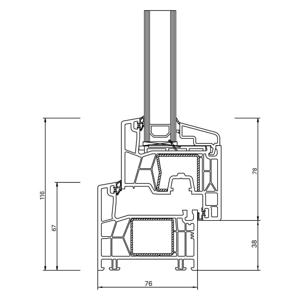
Parámetros constructivos del sistema:
- Tecnología Xtrem: Fórmula especial de PVC clase S con alta concentración de dióxido de titanio para protección contra la intensa radiación solar de España.
- Profundidad de montaje: 76 mm.
- Construcción del perfil: Sistema de 5 cámaras que proporciona un equilibrio óptimo entre peso y aislamiento térmico.
- Sistema de sellado: Doble junta (AD) con juntas coextruidas resistentes al secado por exposición solar.
- Diseño: Líneas rectas y elegantes del perfil, acordes con la arquitectura española moderna.
- Refuerzo: Sección de acero reforzada para compensar expansiones térmicas en ventanas laminadas oscuras.
Opciones de acristalamiento y relleno:
- Espesor máximo de relleno: hasta 50 mm.
- Paquete óptimo: Permite instalar potentes vidrios dobles con vidrio selectivo (Guardian Sun) para protección contra sobrecalentamiento.
Dimensiones máximas de construcción:
- Altura máxima de hoja: hasta 2400 mm (blanco) / 2300 mm (color).
- Anchura máxima de hoja: hasta 1500 mm.
Características certificadas:
- Aislamiento térmico del perfil (Uf): 1,0 W/m²K.
- Estanqueidad al agua: hasta E2250.
- Permeabilidad al aire: Clase 4.
- Aislamiento acústico: hasta 46 dB.
- Resistencia al viento: hasta C5.
- Resistencia antirrobo: RC2.
Tecnología Xtrem para clima cálido
Protección contra el sol intenso
Más luz natural en casa
Máxima transmisión de luz
Refuerzo de acero mejorado
Estabilidad de la construcción
Kömmerling Xtrem 76 AD
Opción universal para el sol español. La composición especial del perfil no teme al calor y no amarillea con el tiempo. Es el «punto medio» para quienes necesitan ventanas alemanas fiables sin pagar de más por opciones innecesarias.
Más Ideas e Inspiración
Estos son algunos ejemplos de nuestro trabajo con el perfil Kömmerling Xtrem 76 AD. Toda esta inspiración es para usted y solo para usted.
Estamos trabajando en mantener los datos actualizados. Contáctenos si necesita materiales actualizados.
Opciones de Financiación
Disfrute de su compra ahora y páguelo a plazos utilizando nuestros servicios de financiación.
Más detallesNo Olvide Añadir
Elementos adicionales y accesorios que harán su hogar aún más confortable
Mosquiteras
Manillas con Cerradura
Laminación
Elementos Decorativos
Compare con Perfiles Similares
Soluciones alternativas de otros fabricantes
Kömmerling EuroFutur Elegance
Kömmerling Xtrem 76 MD
Kömmerling 76 MD Zero
Cortizo A 70
Cortizo A 84 Passivhaus
Veka Softline 70
Disponible en Su Región
Trabajamos en toda España
Dejar una reseña
Reseñas de clientes
Descubra lo que la gente dice al respecto
Aún no hay reseñas. ¡Sea el primero!
FAQs
Preguntas Frecuentes sobre Kömmerling Xtrem 76 AD
¿Qué significa exactamente la marca Xtrem para el clima de España?
La marca Xtrem confirma que el perfil está certificado para uso en regiones con niveles extremadamente altos de radiación solar (clase S según estándares internacionales). Se han añadido modificadores especiales a la composición del PVC que previenen el amarilleamiento y la fragilidad del plástico bajo la intensa radiación ultravioleta característica de la Costa Blanca y el sur de España.
¿En qué se diferencia el sistema 76 AD de los perfiles estándar de 70 mm?
La profundidad aumentada de 76 mm permite usar vidrios más anchos y térmicos de hasta 50 mm. Además, la estructura de 5 cámaras del 76 AD está diseñada según el principio de distribución óptima de isotermas, haciendo la ventana un 25% más eficiente que los sistemas antiguos mientras mantiene un aspecto fino y elegante.
¿Cómo maneja esta ventana el ruido urbano?
Kömmerling Xtrem 76 AD combinado con un vidrio acústico de calidad proporciona una reducción de ruido de hasta 47 dB. Esto significa que los sonidos de una calle concurrida o el tráfico se percibirán en el interior como un susurro apenas audible, creando un ambiente ideal para el descanso o el trabajo.
¿Por qué dicen que con estas ventanas la casa se vuelve más luminosa?
Los diseñadores de Kömmerling minimizaron el ancho visible de la combinación marco-hoja a 116 mm. Esto permite aumentar el área de la parte transparente (acristalamiento). Obtiene un 5-10% más de luz solar natural en el interior comparado con perfiles de PVC anchos estándar, ampliando visualmente el espacio.
¿Qué tan hermético es el sistema con viento fuerte y lluvias?
El sistema 76 AD está equipado con dos juntas de EPDM de alta calidad que mantienen su elasticidad durante décadas. La ventana tiene la clase 4 más alta de permeabilidad al aire y clase 9A de estanqueidad al agua, garantizando ausencia de corrientes y filtraciones incluso durante fuertes tormentas en la costa.
¿Qué opciones de color están disponibles para este modelo?
Para Xtrem 76 AD hay más de 50 opciones de laminación disponibles: desde texturas de madera clásicas hasta tonos metálicos modernos. Gracias a la película resistente a UV, el color no se decolora con el sol, y la tecnología proCoverTec permite pedir ventanas con una superficie mate única, agradable al tacto y resistente a la suciedad.









