UW- value 1,3

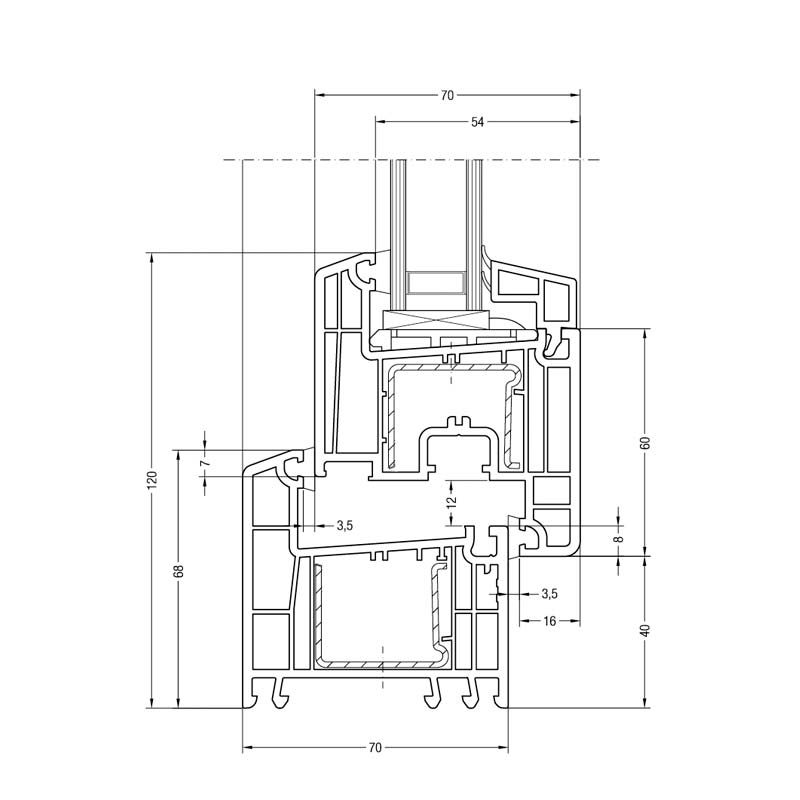
REHAU Eurodesign 70 es un sistema de perfiles de PVC de alta calidad para ventanas y puertas, que proporciona confort, eficiencia energética y seguridad. El sistema tiene una profundidad de instalación de 70 mm y tecnología de 5 cámaras, lo que permite un excelente aislamiento térmico y reduce los costos de calefacción. También se caracteriza por un alto aislamiento acústico, resistencia a la intemperie y durabilidad.

Los perfiles Eurodesign 70 son fáciles de limpiar gracias a su superficie lisa y proporcionan una mayor protección contra robos. El sistema ofrece una amplia gama de soluciones de diseño, incluidas varias formas, colores y opciones de hojas, lo que le permite encajar armoniosamente en cualquier estilo arquitectónico. Es una solución universal tanto para nuevas construcciones como para modernizaciones, combinando economía, calidad y estética.

Número de artículo
100.100.001

Especificaciones Técnicas

Detalles

A través de los años

Superficie HDF

Superficie HDF
Los perfiles Rehau Euro-Design 70 cuentan con superficie de acabado de alta definición (HDF). Esta superficie es excepcionalmente lisa, resistente a la suciedad y fácil de mantener. Además, la superficie HDF es altamente resistente a las condiciones climáticas, lo que garantiza la durabilidad y el mantenimiento de la apariencia estética de las ventanas durante muchos años.

Cuidando de ti

Más luz

Más luz
Gracias a su construcción excepcionalmente estrecha, los perfiles Rehau Euro-Design 70 dejan más espacio para la unidad de vidrio, lo que permite aumentar el área acristalada. Esto promueve la máxima penetración de luz natural en la habitación, haciéndola más brillante y cómoda.

Confort en el hogar

Ventanas cálidas y silenciosas

Ventanas cálidas y silenciosas
La profundidad del sistema de 70 mm y la estructura de 5 cámaras del perfil Rehau Euro-Design 70 proporcionan un excelente aislamiento térmico, contribuyendo a un microclima favorable en la habitación y ayudando a reducir los costos de calefacción y aire acondicionado. Además, Rehau Euro-Design 70 proporciona un alto aislamiento acústico de hasta 45 dB, creando un ambiente tranquilo y silencioso en casa.

Herrajes

Comodidad y durabilidad

Herrajes fiables
Las ventanas Rehau Euro-Design 70 pueden equiparse con herrajes de alta calidad como Siegenia, Hoppe, GU, Roto, que garantizan fiabilidad, facilidad de uso y seguridad. El sistema también prevé la posibilidad de instalar dispositivos de cierre reforzados, lo que aumenta la resistencia al robo hasta la clase RC2.

Resistencia y construcción

Fiabilidad sin compromisos

Ventanas cálidas y silenciosas
Los perfiles REHAU Euro-Design 70 están hechos de cloruro de polivinilo (PVC) de alta calidad, que tiene su propia resistencia, durabilidad y resistencia a las influencias ambientales. Y en combinación con un perfil metálico, la ventana puede soportar una carga significativa sin deformación.

Microventilación

Aire fresco sin corrientes

Microventilación
Las ventanas Rehau Euro-Design 70 pueden implementar un sistema de control climático o sistema de autoventilación que permite la ventilación de la habitación incluso sin participación humana directa. El usuario puede regular de forma independiente el flujo de aire necesario para la ventilación. El aire penetra a través de una rendija fina, pero los insectos no penetran.

Rehau Euro-design 70

Sistema clásico de 5 cámaras con 70 mm de profundidad, fiable y económico para construcción estándar. Superficie HDF.

Calcular Costo
Tiempo de fabricación estimado 3-6 semanas.
Servicios Disponibles
Medición y diseño gratuitos Más detalles
Entrega en el lugar de instalación Más detalles
Instalación por nuestros especialistas Más detalles
Comprar por Teléfono
Llámenos de lunes a sábado, excepto festivos, de 8:00 a 22:00. Domingos y festivos de 10:00 a 20:00. Llamar

Renovaciones

¿Pensando en la renovación que siempre pospone? Tenemos la solución

Más detalles

Opciones de Financiación

Disfrute de su compra ahora y páguelo a plazos utilizando nuestros servicios de financiación.

Más detalles

No Olvide Añadir

Elementos adicionales y accesorios que harán su hogar aún más confortable

Mosquiteras

Protegen su hogar de insectos, polvo y polen, permitiéndole disfrutar del aire fresco incluso en pleno verano.

Manillas con Cerradura

Los herrajes de calidad garantizan la comodidad de uso y la seguridad de sus ventanas y puertas.

Laminación

Las fachadas coloridas y el deseo de decorar su hogar hacen que la demanda de ventanas laminadas crezca cada año.

Elementos Decorativos

Las tiras y molduras decorativas permiten dar a sus ventanas un estilo individual, destacando las características arquitectónicas de su hogar.

Compare con Perfiles Similares

Soluciones alternativas de otros fabricantes

UW- value 0,94

Rehau Synego

Sistema de 7 cámaras con 80 mm de profundidad, que proporciona alto aislamiento térmico y acústico para una vida cómoda. HDF.
Eficiencia energética
A++
Cámaras del perfil
7 cámaras
Profundidad del perfil
80mm
Altura del perfil
117mm
Unidad de vidrio
hasta 51mm
Protección térmica
Uw ≤ 0,94 W/(m²·K)
Aislamiento acústico
≈46 Rw(dB)
UW- value 1,2

Rehau Brillant-Design 70

Sistema premium de 70 mm con diseño elegante, superficie HDF lisa y buenas propiedades de aislamiento térmico. HDF
Eficiencia energética
A
Cámaras del perfil
5 cámaras
Profundidad del perfil
70mm
Altura del perfil
116mm
Unidad de vidrio
hasta 42mm
Protección térmica
Uw ≤ 1,2 W/(m²·K)
Aislamiento acústico
≈43 Rw(dB)
UW- value 1,1

Rehau Brillant-Design 80

Versión mejorada de Brillant-Design 80, con 80 mm de profundidad y 6 cámaras para mayor eficiencia energética. Superficie HDF.
Eficiencia energética
A+
Cámaras del perfil
6 cámaras
Profundidad del perfil
80mm
Altura del perfil
120mm
Unidad de vidrio
hasta 44mm
Protección térmica
Uw ≤ 1,1 W/(m²·K)
Aislamiento acústico
≈45 Rw(dB)

Dejar una reseña

Reseñas de clientes

Descubra lo que la gente dice al respecto

0.0
Valoración media
0 reseñas
5 ★
0
4 ★
0
3 ★
0
2 ★
0
1 ★
0

Aún no hay reseñas. ¡Sea el primero!

FAQs

Preguntas Frecuentes sobre Rehau Euro-design 70

¿En qué se diferencia Euro-design 70 de otros sistemas REHAU?

Es un sistema clásico de 5 cámaras con una profundidad de instalación de 70 mm. Proporciona un rendimiento equilibrado de calor/ruido a un precio asequible y es adecuado para nuevas construcciones y renovaciones.

¿Cuál es el espesor máximo de unidad de vidrio adecuado?

Hasta 40 mm - esto permite el uso de unidades de vidrio doble y triple de ahorro de energía con espaciador cálido.

¿Es adecuado para una calle ruidosa?

Sí, el aislamiento acústico básico del sistema ≈43 dB (Rw) con la configuración correcta de la unidad de vidrio, que es suficiente para la mayoría de las condiciones urbanas.

¿Se necesita refuerzo de acero?

Sí, los marcos y hojas de Euro-design 70 utilizan refuerzo de acero para la rigidez, especialmente para tamaños grandes y/o laminación.

¿Qué opciones de diseño están disponibles?

Superficie HDF lisa, varias formas de junquillo, laminaciones de madera y RAL, manijas decorativas y herrajes ocultos bajo pedido.

¿Qué tamaños de hoja son aceptables?

Límites recomendados - hasta ~1,3-1,4 m de ancho para hojas oscilobatientes (dependen de herrajes/unidad de vidrio); las dimensiones exactas se acuerdan durante el cálculo.

¿Hay opciones de seguridad y ventilación?

Disponibles configuraciones anti-robo hasta RC2, cerraduras para niños, microventilación, ventilación por ranura y escalonada, válvulas de suministro.

¿En qué se diferencia Euro-design 70 de Brillant-Design 70?

Ambos sistemas son de 70 mm y 5 cámaras; Brillant-Design 70 - con énfasis en estética premium y diseño ampliado, Euro-design 70 - en practicidad y precio.

¿Necesita ayuda para elegir?

Solicite una consulta gratuita de nuestros especialistas. Le devolveremos la llamada en un momento conveniente y discutiremos cómo podemos ayudarle.

Todos los precios están en euros e incluyen IVA y costos de entrega. Los precios tachados corresponden a los precios originales del producto según el precio de venta recomendado por el fabricante (si está disponible). En caso de prepago, los precios y ofertas serán válidos durante 7 días desde la confirmación del pedido; posteriormente, estarán sujetos a cambios. Zona de entrega: España.

Los colores, acristalamientos y tamaños pueden diferir de las imágenes. No se garantiza el realismo de la imagen.

Algunos productos e imágenes relacionadas en videos pueden contener artículos descontinuados e información.

1 Los tiempos de producción pueden aumentarse bajo ciertas circunstancias (p. ej., diseño especial, períodos de vacaciones de la empresa, etc.). Por razones técnicas, no podemos tener en cuenta estas extensiones al calcular los tiempos de producción. Debido a circunstancias externas en la adquisición de materias primas como acero, PVC y madera, el tiempo de producción de su pedido puede aumentarse. Por favor, tenga esto en cuenta. Esto no le da derecho a exigir cambios en los precios contractuales o la posibilidad de rescindir el contrato de compraventa.

Como cliente de Ventanas Fraktal, recibirá recomendaciones por correo electrónico, de las cuales puede darse de baja en cualquier momento siguiendo el enlace adjunto. Puede encontrar información más detallada en nuestra Política de privacidad.