UW- value 1,1

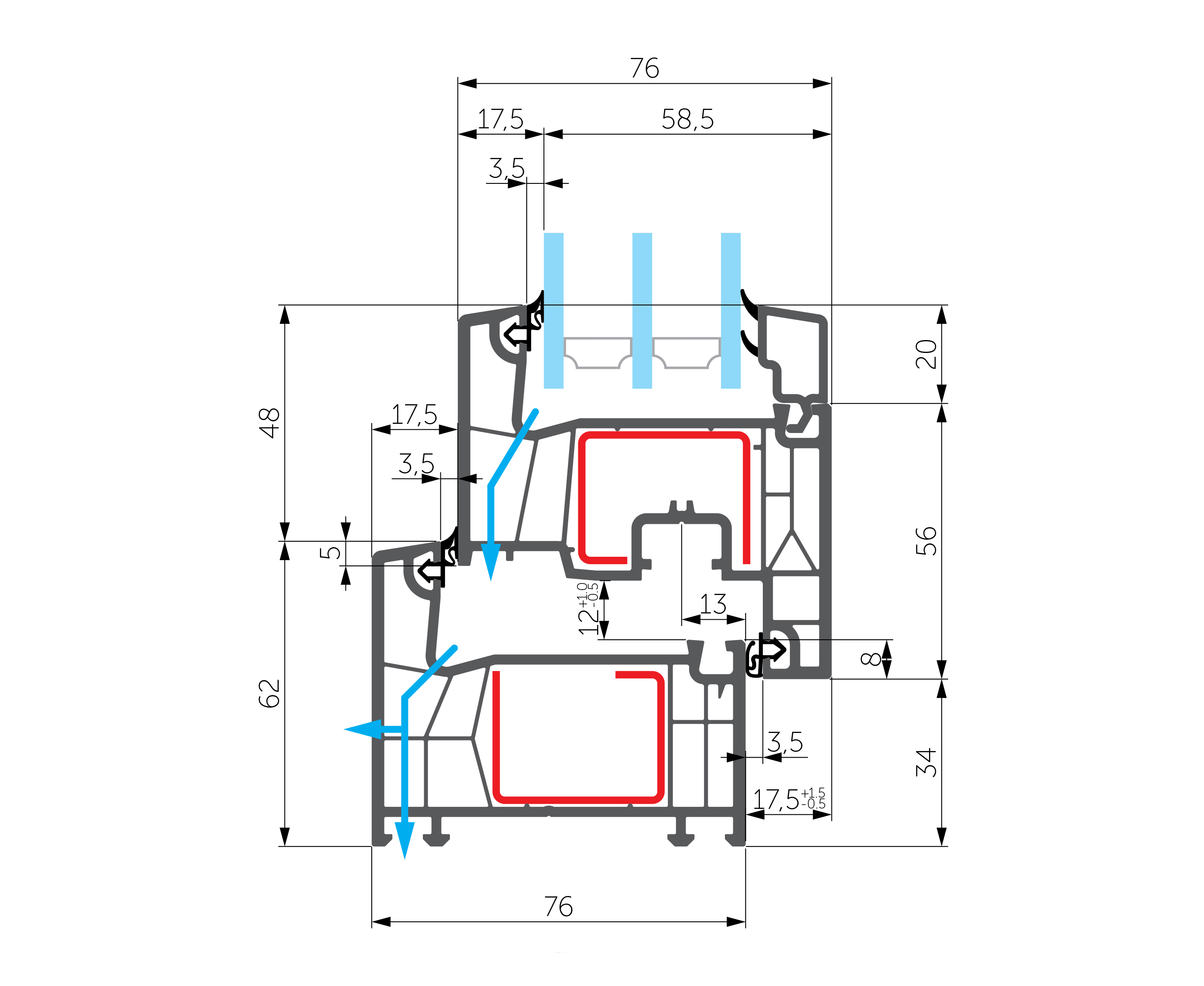
WDS 76 AD — Эволюция в каждом миллиметре. Эта система представляет собой современный европейский стандарт остекления, который постепенно вытесняет привычные 70-миллиметровые окна. Дополнительные 6 мм монтажной глубины (76 мм) дают колоссальное преимущество в жесткости конструкции и возможностях остекления.

Почему стоит выбрать платформу 76 мм:

  • Максимальная прозрачность: Благодаря современной геометрии, профиль стал ниже, а световой проем — больше. Вы получаете на 10% больше естественного света по сравнению со старыми широкими рамами.
  • Сверх-тишина: Это самая доступная система в нашем каталоге, куда можно установить стеклопакет толщиной 48 мм. Ранее такая опция была доступна только в дорогих элитных сериях.
  • Система AD (Arrest Design): Классическая компоновка с двумя контурами уплотнения обеспечивает легкое закрывание створки и простой уход (нет среднего бортика, где скапливается пыль), сохраняя высокую герметичность.

Идеальный баланс технологий и цены для остекления современных квартир в Барселоне, Валенсии и Мадриде.

Артикль
600.100.003

Технические характеристики

Детали

Акустика

Стеклопакет 48 мм

Толстый стеклопакет
Главное преимущество 76-й серии — возможность установить широкий стеклопакет до 48 мм с толстыми стеклами (6 мм или триплекс). Такая конструкция эффективно гасит уличный шум, снижая его на 35–40 дБ. Это оптимальное решение для квартир у дорог и в шумных районах без переплаты за дорогие премиум-системы.

Надежность

Современная статика

Ветроустойчивость
Увеличенная ширина профиля (76 мм) работает как дополнительное ребро жёсткости, усиливая всю конструкцию. Окно сохраняет геометрию при сильных перепадах температур и ветровых нагрузках. Створки не провисают со временем, а фурнитура служит дольше благодаря равномерному распределению нагрузки.

Дизайн

Больше света

Узкие рамы
Конструкция профиля оптимизирована так, чтобы минимизировать высоту пластика и увеличить площадь остекления. В ваш дом попадает больше солнечного света, что делает помещение визуально просторнее и уютнее. Естественное освещение снижает потребность в искусственном свете днём, экономя электроэнергию.

WDS 76 AD (76 мм)

Новый европейский стандарт. Система 76 мм, позволяющая установить мощные стеклопакеты без переплаты за премиум.

Рассчитать стоимость
Расчетное время изготовления 3-6 недель.
Доступные услуги
Бесплатный замер и проект Подробнее
Доставка к месту установки Подробнее
Установка нашими мастерами Подробнее
Купить по телефону
Звоните нам по телефону с понедельника по субботу, кроме праздничных дней, с 8:00 до 22:00. Воскресенье и праздничные дни с 10:00 до 20:00. Позвонить

Реновации

Думаете о ремонте, который вы постоянно откладываете? У нас есть решение

Подробнее

Варианты финансирования

Наслаждайтесь покупкой сейчас и платите за нее по частям, воспользовавшись нашими услугами по финансированию.

Подробнее

Не забудьте добавить

Дополнительные элементы и аксессуары, которые сделают ваш дом еще более комфортным

Москитные сетки

Защищают ваш дом от насекомых, пыли и тополиного пуха, позволяя наслаждаться свежим воздухом даже в разгар лета.

Ручки и запорные элементы

Качественная фурнитура обеспечивает удобство использования и безопасность ваших окон и дверей.

Ламинация

Цветные фасады домов и желание украсить свой дом приводит к тому, что спрос на ламинированные окна растет с каждым годом.

Декоративные элементы

Декоративные полосы и планки позволяют придать вашим окнам индивидуальный стиль, подчеркивая архитектурные особенности дома.

Сравните с похожими профилями

Альтернативные решения от других производителей

UW- value 1,4

WDS 5S

Лучшая цена. 5-камерная система 60 мм для остекления дач, лоджий и технических помещений.
Энергоэффективность
B
Камерность профиля
5 камер
Глубина профиля
60мм
Высота профиля
107мм
Стеклопакет
до 32мм
Теплозащита
Uw ≤ 1,4 Вт/(м²·K)
Звукоизоляция
≈38 Rw(дБ)
UW- value 1,3

WDS 6S (70 мм)

Золотой стандарт остекления. 6-камерная система 70 мм с улучшенной шумоизоляцией.
Энергоэффективность
A
Камерность профиля
6 камер
Глубина профиля
70мм
Высота профиля
113мм
Стеклопакет
до 40мм
Теплозащита
Uw ≤ 1,3 Вт/(м²·K)
Звукоизоляция
≈40 Rw(дБ)
UW- value 1,2

WDS 7S (70 мм)

Эстетика без компромиссов. 6-камерная система с дизайном Soft Line для изысканных интерьеров.
Энергоэффективность
A
Камерность профиля
6 камер
Глубина профиля
70мм
Высота профиля
113мм
Стеклопакет
до 40мм
Теплозащита
Uw ≤ 1,2 Вт/(м²·K)
Звукоизоляция
≈42 Rw(дБ)
UW- value 1,3

Rehau Euro-design 70

Немецкая классика. Самое популярное окно для реновации с глянцевой поверхностью HDF.
Энергоэффективность
A
Камерность профиля
5 камеры
Глубина профиля
70мм
Высота профиля
108мм
Стеклопакет
до 40мм
Теплозащита
Uw ≤ 1,3 Вт/(м²·K)
Звукоизоляция
≈43 Rw(дБ)
UW- value 0,94

Rehau Synego

Мощная система 80 мм для максимальной тишины и тепла. Хит продаж в сегменте комфорт. HDF поверхность.
Энергоэффективность
A++
Камерность профиля
7 камер
Глубина профиля
80мм
Высота профиля
117мм
Стеклопакет
до 51мм
Теплозащита
Uw ≤ 0,94 Вт/(м²·K)
Звукоизоляция
≈46 Rw(дБ)
UW- value 1,2

Rehau Brillant-Design 70

Дизайнерская система с элегантными скругленными или скошенными формами. HDF поверхность.
Энергоэффективность
A
Камерность профиля
5 камер
Глубина профиля
70мм
Высота профиля
116мм
Стеклопакет
до 42мм
Теплозащита
Uw ≤ 1,2 Вт/(м²·K)
Звукоизоляция
≈43 Rw(дБ)

Оставить отзыв

Отзывы клиентов

Узнайте, что говорят об этом

0.0
Средняя оценка
0 отзывов
5 ★
0
4 ★
0
3 ★
0
2 ★
0
1 ★
0

Пока нет отзывов. Будьте первым!

FAQs

Частые вопросы о WDS 76 AD (76 мм)

Что значит маркировка AD?

AD (Anschlagdichtung) означает систему с двумя контурами уплотнения (внешним и внутренним). Это проверенная классическая конструкция, которая гарантирует надежность, простоту регулировки и более доступную цену по сравнению с системами MD (три контура).

Зачем мне 76 мм, если есть 70 мм?

76 мм — это более современная платформа. При разнице в цене всего около 10-15%, вы получаете возможность ставить более теплые и тихие стеклопакеты (48 мм против 40 мм у 70-й серии), а также более жесткую раму.

Какая теплоизоляция у этого окна?

Коэффициент теплопередачи рамы Uf составляет 1.2 Вт/м²К. При использовании хорошего стеклопакета, общее значение Uw может достигать 0.8-0.9, что соответствует высоким стандартам энергосбережения Испании.

Сложно ли мыть эти окна?

Наоборот, очень легко. Благодаря системе AD (отсутствие среднего контура уплотнения), фальц рамы остается открытым и гладким — его легко протереть тряпкой, грязи негде застревать.

Можно ли сделать двери из этого профиля?

Да, система WDS 76 AD имеет усиленные дверные створки, позволяющие изготавливать входные группы и двери на террасу с высоким уровнем безопасности.

Чем WDS 76 лучше REHAU Euro 70 или VEKA Softline 70?

WDS 76 AD имеет увеличенную монтажную глубину (76 мм против 70 мм), что позволяет устанавливать более толстые стеклопакеты до 48 мм для лучшей шумоизоляции. При сопоставимом качестве профиля цена WDS на 20–30% ниже за счёт оптимизированной логистики из Украины. Все системы производятся по единым европейским стандартам качества.

Нужна помощь в выборе?

Закажите бесплатную консультацию у специалистов нашей компании. Мы перезвоним вам в удобное для вас время и обсудим как мы сможем вам помочь.

Все цены указаны в евро и включают НДС и стоимость доставки. Зачеркнутые цены соответствуют первоначальным ценам на продукцию в соответствии с рекомендованной производителем розничной ценой (при наличии). В случае предоплаты цены и предложения будут действительны в течение 7 дней с момента подтверждения заказа; В дальнейшем они будут подвергаться изменениям. Зона доставки: Испания.

Цвета, остекление и размеры могут отличаться от изображений. Реалистичность изображения не гарантируется.

Некоторые продукты и связанные с ними изображения в видео могут содержать снятые с производства статьи и информацию.

1 Сроки изготовления могут быть увеличены при определенных обстоятельствах (например, особый дизайн, период отпусков компании и т. д.). По техническим причинам мы не можем учесть эти расширения при расчете сроков производства. Из-за внешних обстоятельств при закупке сырья, такого как сталь, ПВХ и древесина, срок изготовления вашего заказа может быть увеличен. Пожалуйста, помните об этом. Это не дает вам права требовать изменения договорных цен или возможности расторжения договора купли-продажи.

Как клиент Ventanas Fraktal, вы будете получать рекомендации по электронной почте, от которых вы сможете отказаться в любое время, перейдя по прилагаемой ссылке. Более подробную информацию можно найти в нашей Политика конфиденциальности.