Una puerta de entrada que no le fallará. Las uniones de esquina soldadas en la hoja garantizan alta rigidez y estabilidad incluso con uso activo.
El sistema de 70mm de profundidad proporciona buen aislamiento térmico y protección antirrobo. Esta es una solución probada y fiable para chalets, casas adosadas y salidas secundarias, combinando calidad alemana y apariencia estética.
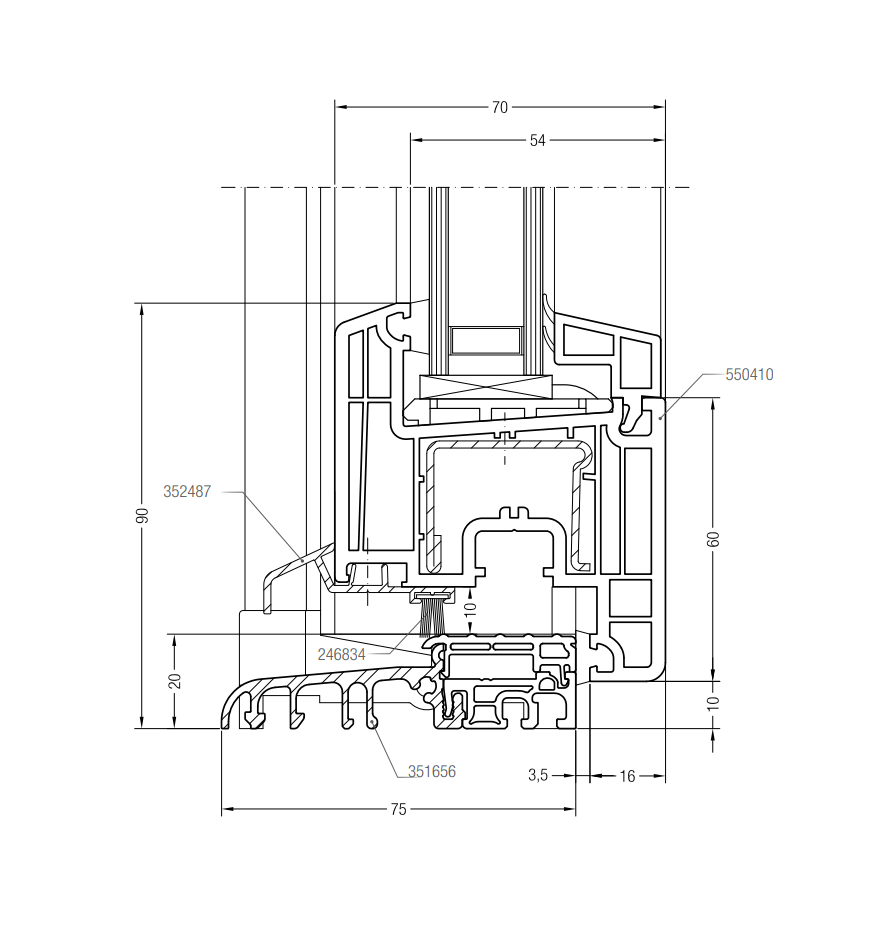
Especificaciones Técnicas
Detalles
Puerta de entrada clásica y fiable de 70mm con alta estabilidad.
Parámetros estructurales del sistema:
- Profundidad de instalación: 70 mm.
- Estructura del perfil: 5 cámaras (Marco) / 4 cámaras (Hoja).
- Diseño de superficie: El sistema Brillant presenta curvas elegantes (radio de 2 mm) o chaflanes de 20°, dando a la puerta un aspecto premium.
- Superficie: HDF (High Definition Finishing) — superficie ultrasuave y brillante, resistente a la suciedad y a la radiación UV.
- Refuerzo: Potente contorno de acero cerrado (espesor del metal de 1,5 a 2,0 mm) + conectores de esquina soldados en la hoja para máxima estática.
- Umbral: Umbral de aluminio de 20 mm de altura con rotura de puente térmico (DIN 18040).
Opciones de acristalamiento y relleno:
- Espesor máximo de relleno: hasta 41-42 mm.
- Tipos de relleno: Unidades de doble acristalamiento (estándar 32 mm o 40 mm), paneles sándwich decorativos, vidrieras.
- Junquillo: Opción de usar junquillos moldeados (redondeados) para mantener el estilo clásico.
Dimensiones máximas de la hoja:
- Puerta de una hoja: Ancho hasta 1000 mm × Alto hasta 2200 mm.
- Puerta de dos hojas (Oscilobatiente): Ancho total hasta 1800 mm.
- Peso de la hoja: hasta 100 kg (con bisagras reforzadas).
Características certificadas (según DIN EN 14351-1):
- Aislamiento térmico del perfil (Uf): 1,3 W/m²K.
- Aislamiento térmico de la puerta ensamblada (Ud): hasta 1,1 - 1,2 W/m²K.
- Aislamiento acústico (Rw,p): hasta 40-42 dB.
- Resistencia al robo: Clase RC2 (anteriormente WK2) / RC3 (con configuración especial).
- Permeabilidad al aire: Clase 4 (DIN EN 12207).
- Estanqueidad al agua: Clase 9A (DIN EN 12208).
- Carga de viento: Clase C2/B2.
Seguridad en cada punto
Cerradura multipunto
Sin corrientes frías
Aislamiento térmico
Cree su entrada
Compatibilidad con paneles
Puerta Rehau Brillant-Design 70
Puerta de entrada clásica y fiable de 70mm con alta estabilidad.
Más Ideas e Inspiración
Estos son algunos ejemplos de nuestro trabajo con el perfil Puerta Rehau Brillant-Design 70. Toda esta inspiración es para usted y solo para usted.
Estamos trabajando en mantener los datos actualizados. Contáctenos si necesita materiales actualizados.
Opciones de Financiación
Disfrute de su compra ahora y páguelo a plazos utilizando nuestros servicios de financiación.
Más detallesNo Olvide Añadir
Elementos adicionales y accesorios que harán su hogar aún más confortable
Mosquiteras
Manillas con Cerradura
Laminación
Elementos Decorativos
Compare con Perfiles Similares
Soluciones alternativas de otros fabricantes
Rehau Euro-design 70
Rehau Synego
Rehau Brillant-Design 70
Kömmerling EuroFutur Puerta
Kömmerling 76 Puerta
Kömmerling 88 Puerta
Disponible en Su Región
Trabajamos en toda España
Dejar una reseña
Reseñas de clientes
Descubra lo que la gente dice al respecto
Aún no hay reseñas. ¡Sea el primero!
FAQs
Preguntas Frecuentes sobre Puerta Rehau Brillant-Design 70
¿Es realmente una puerta de entrada y no una puerta de balcón?
Sí, es un conjunto de entrada reforzado. A diferencia de las puertas de balcón, utiliza una hoja ancha, refuerzo cerrado potente (metal de 2mm+) y "pezuñas" especiales (conectores de esquina soldados). No se descolgará y soportará cientos de miles de ciclos de apertura.
¿No amarilleará el plástico con el sol?
No. Utilizamos perfil original Rehau con fórmula HDF (High Definition Finishing). Está especialmente diseñado para resistir los rayos UV agresivos. La puerta permanecerá blanca (o mantendrá su color de laminación) durante décadas.
¿Puedo instalar una cerradura electrónica?
Fácilmente. El perfil es compatible con sistemas de acceso modernos: escáneres de huellas dactilares, paneles con teclado y cerraduras inteligentes. Preparamos todo el fresado necesario en fábrica.
¿Habrá corriente de aire por debajo?
Excluido si usa el umbral correcto. Recomendamos un umbral de aluminio "cálido" con rotura de puente térmico de 20mm de altura. Corta el puente frío, protege de la lluvia oblicua y es suficientemente bajo para no tropezar.
¿Es difícil de forzar?
Muy difícil. Al usar una cerradura multipunto (cerrojos y ganchos se enganchan al marco en varios puntos) y cerraderos antirrobo, la puerta resiste el apalancamiento con palanca durante 15-20 minutos (clase RC2). Esto es suficiente para disuadir a cualquier ladrón casual.
¿Qué diseño puedo elegir?
Cualquiera. El perfil de 70mm acepta rellenos de hasta 42mm de grosor. Pueden ser paneles sándwich de diseño, vidrieras, vidrio triplex, inserciones de espejo o laminación imitación madera. La puerta encaja tanto en estilos clásicos como hi-tech.









