Una elección racional para su hogar. Rehau Euro-Design 70 es un sistema de entrada versátil. Es ideal como puerta de entrada principal para pisos y chalets de construcción estándar. También es la mejor opción para una "salida secundaria", por ejemplo, del salón a la terraza, al jardín de invierno o al garaje.
A diferencia de las puertas de balcón ligeras, Euro-Design 70 cuenta con refuerzo de acero reforzado, bisagras (diseñadas para apertura frecuente) y una cerradura completa. Es el equilibrio entre fiabilidad y precio asequible.
Especificaciones Técnicas
Detalles
Puerta de entrada óptima de 70 mm. La mejor relación calidad-precio alemana.
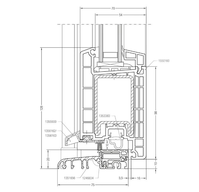
Parámetros estructurales del sistema:
- Profundidad de instalación: 70 mm.
- Estructura del perfil: 5 cámaras (Marco) / 4 cámaras (Hoja).
- Diseño de superficie: Diseño plano clásico con biseles de 15°. A diferencia del redondeado Brillant, este sistema tiene una geometría más estricta.
- Refuerzo: Se utiliza refuerzo estándar en forma de U o cerrado (según las dimensiones), proporcionando la rigidez necesaria según los requisitos estáticos.
- Superficie: PVC liso y fácil de limpiar (Standard White).
- Umbral: Compatible con umbral de aluminio de 20 mm (contorno cálido).
Opciones de acristalamiento:
- Espesor del relleno: hasta 41 mm.
- Tipos de unidades de vidrio: Unidades de una cámara (2 vidrios) y de doble cámara (3 vidrios) con ahorro energético.
- Junquillo: Junquillo rectangular estándar o biselado.
Dimensiones máximas:
- Puerta de una hoja: Ancho hasta 1000 mm × Alto hasta 2150 mm.
- Peso de la hoja: Optimizada para hojas de hasta 80-90 kg.
Características certificadas (DIN EN 14351-1):
- Aislamiento térmico del perfil (Uf): 1,3 W/m²K.
- Aislamiento térmico de la puerta (Ud): hasta 1,2 W/m²K.
- Aislamiento acústico (Rw,p): hasta 40 dB.
- Resistencia al robo: Protección básica (RC1/RC2).
- Estanqueidad al agua: Clase 9A.
- Permeabilidad al aire: Clase 4.
Suavidad perfecta
Superficie HDF
Elegante diseño de 15°
Más luz
Confort en cualquier clima
Cálida y silenciosa
Puerta Rehau Euro-Design 70
Puerta de entrada óptima de 70 mm. La mejor relación calidad-precio alemana.
Más Ideas e Inspiración
Estos son algunos ejemplos de nuestro trabajo con el perfil Puerta Rehau Euro-Design 70. Toda esta inspiración es para usted y solo para usted.
Estamos trabajando en mantener los datos actualizados. Contáctenos si necesita materiales actualizados.
Opciones de Financiación
Disfrute de su compra ahora y páguelo a plazos utilizando nuestros servicios de financiación.
Más detallesNo Olvide Añadir
Elementos adicionales y accesorios que harán su hogar aún más confortable
Mosquiteras
Manillas con Cerradura
Laminación
Elementos Decorativos
Compare con Perfiles Similares
Soluciones alternativas de otros fabricantes
Rehau Euro-design 70
Rehau Synego
Rehau Brillant-Design 70
Kömmerling EuroFutur Puerta
Kömmerling 76 Puerta
Kömmerling 88 Puerta
Disponible en Su Región
Trabajamos en toda España
Dejar una reseña
Reseñas de clientes
Descubra lo que la gente dice al respecto
Aún no hay reseñas. ¡Sea el primero!
FAQs
Preguntas Frecuentes sobre Puerta Rehau Euro-Design 70
¿Cuál es la diferencia entre Euro-Design y Brillant-Design?
La principal diferencia es la estética. Brillant tiene formas redondeadas, una superficie más brillante y se posiciona como diseño premium. Euro-Design tiene líneas rectas clásicas y es más asequible. Sus características técnicas (aislamiento térmico y acústico) son prácticamente idénticas.
¿Para qué propiedades es más adecuada?
Es una opción ideal para renovaciones de pisos, salidas secundarias en chalets (por ejemplo, a la sala de calderas o al jardín), y propiedades de alquiler donde la fiabilidad con un presupuesto moderado es importante.
¿Es fiable contra robos?
Sí, el perfil tiene un desplazamiento de la ranura de herrajes de 13 mm, lo que permite instalar placas de cierre reforzadas. La puerta puede equiparse con herrajes antirrobo hasta clase RC2.
¿Requiere mantenimiento especial?
No, la superficie Rehau es muy lisa. Basta con limpiarla con un paño húmedo y solución jabonosa un par de veces al año para mantenerla como nueva.
¿Cuáles son las limitaciones de tamaño?
Euro-Design está optimizada para huecos estándar. La altura máxima recomendada de la hoja es de 2,15 metros. Para puertas más altas y pesadas, recomendamos la serie Brillant o Synego.
¿Está disponible el laminado imitación madera?
Sí, el sistema está disponible en todos los colores estándar de Rehau, incluyendo Roble Dorado, Antracita y Nogal. Puede pedir la puerta coloreada por uno o ambos lados.









