REHAU Geneo es un sistema de perfiles de PVC innovador y de alta tecnología para ventanas y puertas, que establece nuevos estándares en eficiencia energética, estabilidad y ligereza. Una característica distintiva de Geneo es el uso del material de alta tecnología RAU-FIPRO X, que proporciona una resistencia excepcional sin necesidad de refuerzo de acero en la mayoría de los casos, lo que mejora significativamente las propiedades de aislamiento térmico. Gracias a una profundidad de instalación de 86 mm y construcción multicámara, el sistema logra indicadores de aislamiento térmico sobresalientes, contribuyendo a la máxima reducción de los costos de calefacción.
Las ventanas fabricadas con el perfil Geneo tienen un excelente aislamiento acústico, protegiendo eficazmente contra el ruido externo, y ofrecen un alto nivel de protección contra robos. El peso ligero de los perfiles simplifica la instalación y manipulación, y la superficie lisa facilita el mantenimiento. REHAU Geneo proporciona amplias oportunidades para el diseño arquitectónico gracias a la variedad de formas, colores y acabados, permitiendo la implementación de soluciones audaces y elegantes que cumplen con los más altos requisitos de estética y funcionalidad.
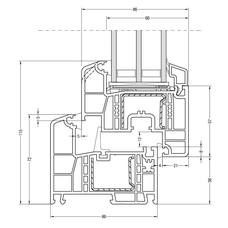
Especificaciones Técnicas
Detalles
Sistema innovador fabricado con material RAU-FIPRO, sin refuerzo de acero, para máximo aislamiento térmico y resistencia. HDF.
Cuidado fácil, belleza duradera.
Superficie que brilla

Deja entrar el sol en cada rincón.
Ventana llena de luz

Calidez y silencio - tu elección.
Oasis del hogar

Fiabilidad en la que puedes confiar.
Calma y protección

Ligereza y estabilidad en uno.
Fortaleza sin acero

Siempre aire fresco, sin preocupaciones.
Respira libremente

Rehau Geneo
Sistema innovador fabricado con material RAU-FIPRO, sin refuerzo de acero, para máximo aislamiento térmico y resistencia. HDF.
Opciones de Financiación
Disfrute de su compra ahora y páguelo a plazos utilizando nuestros servicios de financiación.
Más detallesFAQs
Preguntas Frecuentes sobre Rehau Geneo
¿Qué hace especial a Geneo?
Los perfiles hechos de material compuesto RAU-FIPRO X proporcionan alta rigidez sin refuerzo de acero en la mayoría de los tamaños, lo que reduce la pérdida de calor.
¿Qué geometría y cámaras?
Profundidad de instalación de 86 mm, construcción de 6 cámaras con geometría optimizada para calor y rigidez.
¿Espesor de unidad de vidrio y sonido?
Hasta 53 mm de espesor de unidad de vidrio; aislamiento acústico con configuración adecuada - hasta ~50 dB (Rw), que es adecuado para carreteras ruidosas.
¿Cuáles son los indicadores de eficiencia energética?
Valores Uw bajos hasta ≈0,85 W/m²·K y menos en configuraciones de eficiencia energética - ahorro en calefacción/refrigeración.
¿Se pueden hacer hojas grandes?
Sí, gracias al composite RAU-FIPRO X, son posibles hojas grandes y pesadas con menos peso de estructura y alta estabilidad.
Opciones de seguridad y diseño
Configuraciones hasta RC2/RC3, bisagras ocultas, manijas de diseño, laminaciones KALEIDO y superficie HDF lisa.
¿Dónde es preferible Geneo?
En hogares de eficiencia energética, objetos con altos requisitos de aislamiento acústico y diseño, incluidas aberturas panorámicas.
Geneo vs Synego - ¿qué elegir?
Synego es una excelente solución de clase 80 mm. Geneo - top en ligereza, rigidez y eficiencia energética gracias al composite y profundidad de 86 mm.















