Schüco AWS 90.SI+ es una obra maestra de la ingeniería que une lo incompatible: el metal frío y el aislamiento térmico a nivel de madera o PVC premium. Este sistema está oficialmente certificado por el Instituto de Casa Pasiva (PHI Darmstadt) como componente para construcción energéticamente eficiente.
La elección ideal para quienes construyen la casa del futuro con consumo energético cero, pero no quieren renunciar a la elegancia del aluminio, perfiles estrechos y formatos panorámicos.
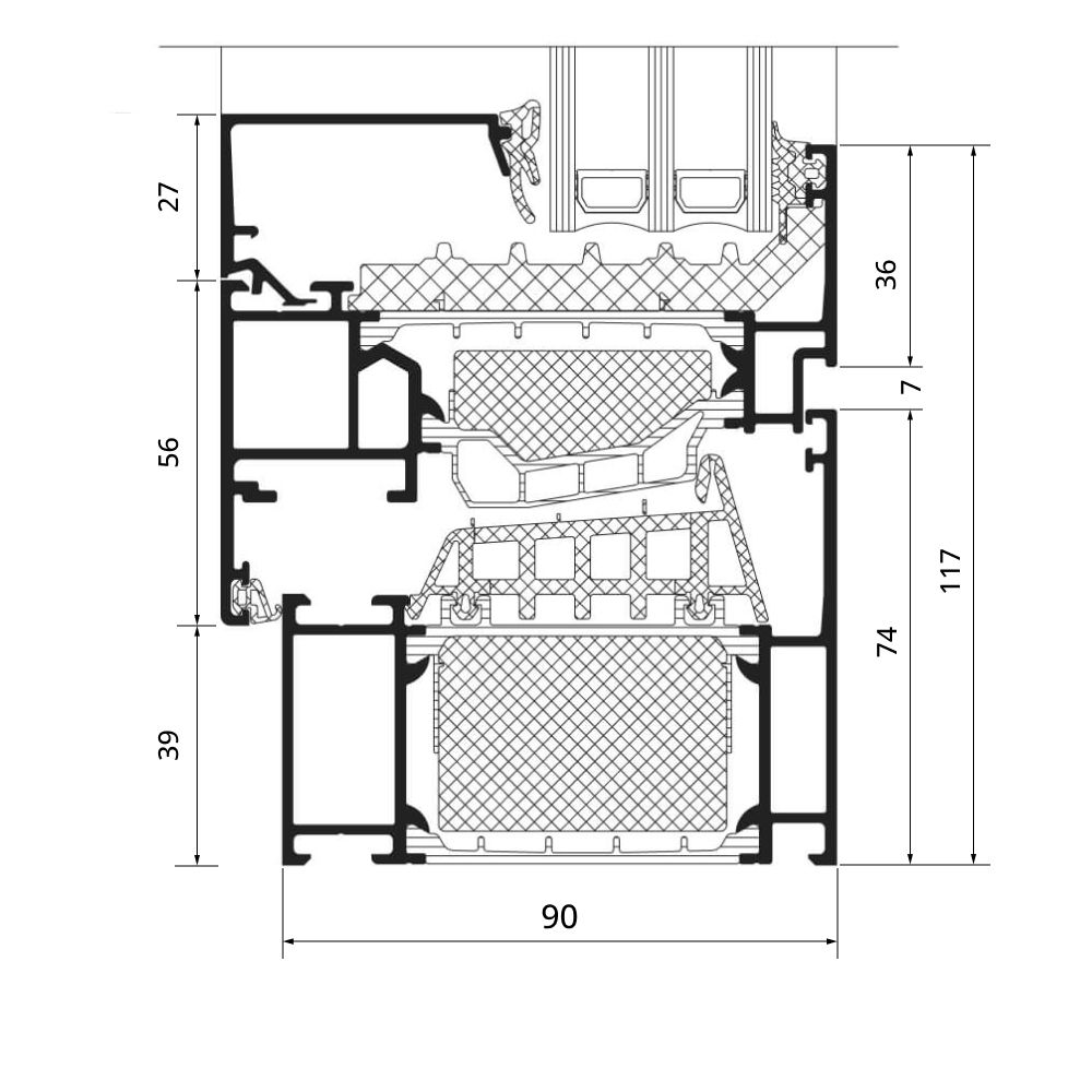
Especificaciones Técnicas
Detalles
El máximo absoluto. Sistema de aluminio estándar «Casa Pasiva» con profundidad de montaje de 90 mm.
Parámetros constructivos del sistema:
- Profundidad de montaje: 90 mm.
- Tecnología de aislamiento térmico: Zona de rotura térmica optimizada con largos puentes de poliamida e inserciones de material espumado que eliminan completamente la congelación.
- Sellado: Sellado de tres niveles con pétalo central voluminoso que garantiza hermeticidad incluso con vientos huracanados.
- Diseño: Anchura visible de perfiles desde 117 mm. Posibilidad de usar herrajes ocultos para aspecto minimalista.
- Ecología: El sistema tiene certificado Cradle to Cradle (nivel plata), que confirma la seguridad de los materiales y la posibilidad de reciclaje completo.
Posibilidades de acristalamiento:
- Espesor de relleno: hasta 68 mm.
- Tipos de acristalamiento: Diseñado para instalación de acristalamiento pesado de triple cámara (4 vidrios) o doble cámara con vidrios laminados gruesos.
Características certificadas:
- Aislamiento térmico (Uf): desde 0,71 W/m²K (marco).
- Aislamiento térmico de ventana (Uw): ≤ 0,8 W/m²K (con acristalamiento correspondiente).
- Aislamiento acústico (Rw): hasta 47 dB.
- Resistencia antirrobo: hasta clase RC3 (anteriormente WK3).
- Permeabilidad al aire: Clase 4.
- Estanqueidad al agua: Clase 9A.
Máximo calor
Estándar Passivhaus
Grandes formatos
Peso pesado
Cuidando de nosotros
Certificado verde
Schüco AWS 90.SI+
El máximo absoluto. Sistema de aluminio estándar «Casa Pasiva» con profundidad de montaje de 90 mm.
Más Ideas e Inspiración
Estos son algunos ejemplos de nuestro trabajo con el perfil Schüco AWS 90.SI+. Toda esta inspiración es para usted y solo para usted.
Estamos trabajando en mantener los datos actualizados. Contáctenos si necesita materiales actualizados.
Opciones de Financiación
Disfrute de su compra ahora y páguelo a plazos utilizando nuestros servicios de financiación.
Más detallesNo Olvide Añadir
Elementos adicionales y accesorios que harán su hogar aún más confortable
Mosquiteras
Manillas con Cerradura
Laminación
Elementos Decorativos
Compare con Perfiles Similares
Soluciones alternativas de otros fabricantes
Schüco AWS 65
Schüco AWS 75.SI+
Schüco AWS 75 PD.SI
Cortizo COR 60
Cortizo COR 70 Industrial
Cortizo COR 70 Hoja Oculta
Dejar una reseña
Reseñas de clientes
Descubra lo que la gente dice al respecto
Aún no hay reseñas. ¡Sea el primero!
FAQs
Preguntas Frecuentes sobre Schüco AWS 90.SI+
¿Por qué se necesita una profundidad de 90 mm?
La mayor profundidad es necesaria para alojar la zona de rotura térmica ampliada e instalar acristalamientos extra gruesos (hasta 68 mm), que físicamente no caben en los sistemas estándar.
¿Es muy diferente del 75.SI+?
La diferencia en aislamiento térmico es notable: el Uf de la serie 90 es 0.71–1.0 frente a 0.9–1.3 de la 75. Esto es crítico para casas pasivas, donde cada vatio de pérdida cuenta.
¿No estará oscura la habitación por los marcos anchos?
No, los ingenieros de Schüco mantuvieron la anchura visible del perfil (marco+hoja) a nivel de 117 mm, lo que es comparable con ventanas normales. La apertura de luz no se ve afectada.
¿Se puede combinar con puertas?
Sí, el sistema es totalmente compatible con la serie de puertas ADS 90.SI, creando un contorno térmico único del edificio para entradas y salidas a terraza.
¿La ventana no se congelará a -40°C?
Imposible. La tecnología de puentes térmicos espumados está desarrollada específicamente para condiciones extremas y garantiza una temperatura en la superficie interior del perfil por encima del punto de rocío incluso en heladas severas.
¿Cuál es la máxima protección contra el ruido?
Gracias a los vidrios gruesos (por ejemplo, dos laminados en la composición del paquete) y la masividad del perfil, el aislamiento acústico alcanza 47–48 dB, creando confort acústico incluso cerca de un aeropuerto.









