Schüco LivIngSlide es la continuación ideal de la línea LivIng en formato de grandes puertas correderas. Los ingenieros lograron transferir la principal ventaja del sistema de ventanas — las juntas EPDM soldables — al diseño corredero. Esto proporciona hermeticidad de clase Hi-End, inaccesible para los portales de plástico convencionales.
Las hojas de hasta 400 kg de peso se deslizan prácticamente sin ruido y se controlan con una mano. Es la mejor solución para salidas a terraza en casas de campo, donde importa el máximo aislamiento térmico y la protección contra corrientes en invierno.
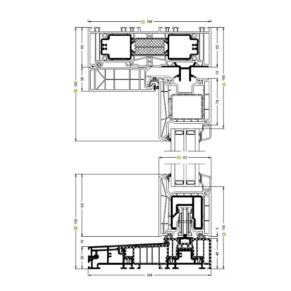
Especificaciones Técnicas
Detalles
Nueva dimensión de confort. Sistema corredero elevador de PVC basado en la tecnología Schüco LivIng 82.
Parámetros constructivos del sistema:
- Profundidad de montaje del marco: 194 mm.
- Profundidad de montaje de la hoja: 82 mm (plataforma de sistema Schüco LivIng).
- Material: PVC de alta calidad con posibilidad de laminado o uso de tapajuntas decorativos.
- Sellado: Juntas EPDM soldables en marco y hoja proporcionan elasticidad incluso a -40°C y hermeticidad en todo el perímetro, incluidas las esquinas.
- Refuerzo: Perfil de acero cerrado en el marco y refuerzos especiales en la hoja para estabilidad de estructuras de grandes dimensiones.
Posibilidades de acristalamiento:
- Espesor máximo de relleno: hasta 52 mm.
- Tipos de acristalamiento: Acristalamientos de doble cámara de ahorro energético con marco cálido.
Características certificadas:
- Aislamiento térmico (Uf): 1,3 W/m²K (marco).
- Aislamiento térmico de estructura (Uw): hasta 0,80 W/m²K (con acristalamiento correspondiente).
- Resistencia antirrobo: hasta clase RC2.
- Aislamiento acústico: hasta 45 dB.
Sin corrientes
Hermeticidad EPDM
Calor en invierno
Balance energético
Luz y color
Diseño de libertad
Schüco LivIngSlide
Nueva dimensión de confort. Sistema corredero elevador de PVC basado en la tecnología Schüco LivIng 82.
Más Ideas e Inspiración
Estos son algunos ejemplos de nuestro trabajo con el perfil Schüco LivIngSlide. Toda esta inspiración es para usted y solo para usted.
Estamos trabajando en mantener los datos actualizados. Contáctenos si necesita materiales actualizados.
Opciones de Financiación
Disfrute de su compra ahora y páguelo a plazos utilizando nuestros servicios de financiación.
Más detallesNo Olvide Añadir
Elementos adicionales y accesorios que harán su hogar aún más confortable
Mosquiteras
Manillas con Cerradura
Laminación
Elementos Decorativos
Compare con Perfiles Similares
Soluciones alternativas de otros fabricantes
Schüco Corona CT 70
Schüco LivIng 82
Schüco LivIng Door
Rehau High-Design Slide
Rehau Synego Slide
Rehau Panorama Swing
Disponible en Su Región
Trabajamos en toda España
Dejar una reseña
Reseñas de clientes
Descubra lo que la gente dice al respecto
Aún no hay reseñas. ¡Sea el primero!
FAQs
Preguntas Frecuentes sobre Schüco LivIngSlide
¿Qué es un sistema corredero elevador?
Al girar la manilla, la hoja se eleva ligeramente sobre los rodillos y se desliza fácilmente por el carril. Al cerrar, se baja, presionando firmemente contra las juntas por su propio peso, garantizando hermeticidad.
¿Qué tan cálida es esta solución comparada con el aluminio?
El PVC por sí mismo tiene baja conductividad térmica. En combinación con un perfil multicámara y umbral cálido, LivIngSlide a menudo supera a los análogos de aluminio de la misma categoría de precio en conservación de calor (Uw hasta 0.8).
¿Qué tamaño puede tener la puerta?
La anchura máxima de toda la estructura puede alcanzar 6.5 metros, y la altura 2.8 metros. El peso de una hoja es de hasta 400 kg.
¿Es difícil abrir una hoja pesada?
No, gracias a herrajes de calidad y rodillos sobre rodamientos, incluso un niño puede mover una hoja de 300 kg de peso. Opcionalmente se pueden instalar amortiguadores o motor eléctrico.
¿Qué umbral tiene este sistema?
El umbral tiene rotura térmica para protección contra congelación. Puede instalarse con saliente mínimo sobre el suelo, proporcionando un paso sin barreras cómodo.
¿Es segura la pared de vidrio?
Sí, se utiliza vidrio templado o laminado. El propio sistema está equipado con herrajes antirrobo y junquillos especiales, proporcionando clase de protección hasta RC2.









