UW- value 1,0

Rehau Synego Slide rompe el estereotipo de que las puertas correderas siempre significan "corrientes de aire". Utiliza un mecanismo de cierre innovador: al girar la manilla, la hoja no solo se detiene—se desplaza perpendicularmente al marco y presiona firmemente contra las juntas de goma en todo el perímetro.

Silencio y Calor (Nivel Geneo)

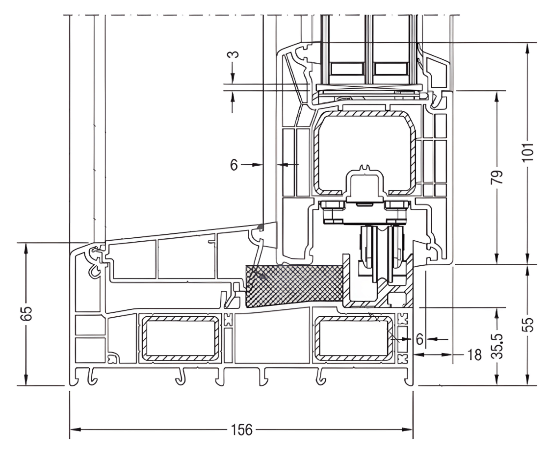
Gracias al perfil de 7 cámaras (profundidad de 80mm) y la capacidad de instalar unidades de vidrio gruesas (hasta 51mm), este sistema iguala a las ventanas abatibles premium en aislamiento térmico y acústico. Es la elección ideal para:
- Salones con acceso a terraza, donde mantener el calor en invierno y el fresco en verano importa;
- Hogares cerca de carreteras transitadas (reduce hasta 43 dB de sonido);
- Reemplazar viejos e incómodos portales PSK que son difíciles de manejar.

Número de artículo
100.310.002

Especificaciones Técnicas

Detalles

Sin corrientes

Mecanismo de presión

Mecanismo de presión
A diferencia de los correderos convencionales, Synego Slide presiona la hoja contra el marco al cerrar. Esto crea una hermeticidad completa comparable a las ventanas abatibles, eliminando los problemas típicos de corrientes.

Ligero como una pluma

Operación sin esfuerzo

Operación sin esfuerzo
La hoja se eleva de las juntas durante el movimiento, eliminando la fricción. Incluso paneles grandes y pesados se deslizan suavemente con mínimo esfuerzo gracias a rodillos de precisión en rieles de acero inoxidable.

Calor retenido

Excelente aislamiento

Aislamiento térmico
Basado en la probada plataforma Synego de 80mm con 7 cámaras, el sistema ofrece un rendimiento térmico excepcional. Combinado con triple acristalamiento, cumple las demandas de hogares energéticamente eficientes.

Rehau Synego Slide

Sistema corredera hermético con mecanismo de presión. Silencio y facilidad en un solo movimiento.

Calcular Costo
Tiempo de fabricación estimado 3-6 semanas.
Servicios Disponibles
Medición y diseño gratuitos Más detalles
Entrega en el lugar de instalación Más detalles
Instalación por nuestros especialistas Más detalles
Comprar por Teléfono
Llámenos de lunes a sábado, excepto festivos, de 8:00 a 22:00. Domingos y festivos de 10:00 a 20:00. Llamar

Renovaciones

¿Pensando en la renovación que siempre pospone? Tenemos la solución

Más detalles

Opciones de Financiación

Disfrute de su compra ahora y páguelo a plazos utilizando nuestros servicios de financiación.

Más detalles

No Olvide Añadir

Elementos adicionales y accesorios que harán su hogar aún más confortable

Mosquiteras

Protegen su hogar de insectos, polvo y polen, permitiéndole disfrutar del aire fresco incluso en pleno verano.

Manillas con Cerradura

Los herrajes de calidad garantizan la comodidad de uso y la seguridad de sus ventanas y puertas.

Laminación

Las fachadas coloridas y el deseo de decorar su hogar hacen que la demanda de ventanas laminadas crezca cada año.

Elementos Decorativos

Las tiras y molduras decorativas permiten dar a sus ventanas un estilo individual, destacando las características arquitectónicas de su hogar.

Compare con Perfiles Similares

Soluciones alternativas de otros fabricantes

UW- value 1,3

Rehau Euro-design 70

Sistema clásico de 5 cámaras con 70 mm de profundidad, fiable y económico para construcción estándar. Superficie HDF.
Eficiencia energética
A
Cámaras del perfil
5 cámaras
Profundidad del perfil
70mm
Altura del perfil
108mm
Unidad de vidrio
hasta 40mm
Protección térmica
Uw ≤ 1,3 W/(m²·K)
Aislamiento acústico
≈43 Rw(dB)
UW- value 0,94

Rehau Synego

Sistema de 7 cámaras con 80 mm de profundidad, que proporciona alto aislamiento térmico y acústico para una vida cómoda. HDF.
Eficiencia energética
A++
Cámaras del perfil
7 cámaras
Profundidad del perfil
80mm
Altura del perfil
117mm
Unidad de vidrio
hasta 51mm
Protección térmica
Uw ≤ 0,94 W/(m²·K)
Aislamiento acústico
≈46 Rw(dB)
UW- value 1,2

Rehau Brillant-Design 70

Sistema premium de 70 mm con diseño elegante, superficie HDF lisa y buenas propiedades de aislamiento térmico. HDF
Eficiencia energética
A
Cámaras del perfil
5 cámaras
Profundidad del perfil
70mm
Altura del perfil
116mm
Unidad de vidrio
hasta 42mm
Protección térmica
Uw ≤ 1,2 W/(m²·K)
Aislamiento acústico
≈43 Rw(dB)
UW- value ≤ 1.3

Kömmerling PremiLine

Sistema corredera clásico que se ha convertido en el estándar de oro para los apartamentos españoles. Solución ideal para acristalar salidas a balcones y terrazas, donde la prioridad es el ahorro de espacio y la fiabilidad de los mecanismos en el uso diario.
Eficiencia energética
B
Material
PVC (Greenline)
Profundidad del perfil
80 mm (marco)
Aislamiento
3 cámaras / 2 juntas
Acristalamiento
hasta 28 mm
Protección térmica (Uw)
≤ 1.4 W/(m²·K)
Aislamiento acústico
≈ 34 Rw(dB)
UW- value ≤ 0.95

Kömmerling PremiSlide 76

Sistema corredera hermético de nueva generación que combina la comodidad del deslizamiento con la estanqueidad de una ventana abatible. Ideal para terrazas panorámicas donde se requiere silencio y protección contra condiciones climáticas extremas.
Eficiencia energética
A+
Material
PVC (Xtrem)
Profundidad del perfil
76 mm (marco 158 mm)
Aislamiento
5 cámaras / 3 juntas
Acristalamiento
hasta 50 mm
Protección térmica (Uw)
≤ 1.1 W/(m²·K)
Aislamiento acústico
≈ 45 Rw(dB)
UW- value ≤ 0.9

Kömmerling PremiDoor 76

Sistema elevador corredera clásico (HST), diseñado para acristalar huecos panorámicos de tamaño medio y grande. Combina una facilidad de manejo excepcional con altos indicadores de aislamiento térmico para viviendas modernas.
Eficiencia energética
A+
Material
PVC (Premium)
Profundidad del perfil
76 mm (marco 179 mm)
Aislamiento
5 cámaras / 2 juntas
Acristalamiento
hasta 50 mm
Protección térmica (Uw)
≤ 0.9 W/(m²·K)
Aislamiento acústico
≈ 44 Rw(dB)

Dejar una reseña

Reseñas de clientes

Descubra lo que la gente dice al respecto

0.0
Valoración media
0 reseñas
5 ★
0
4 ★
0
3 ★
0
2 ★
0
1 ★
0

Aún no hay reseñas. ¡Sea el primero!

FAQs

Preguntas Frecuentes sobre Rehau Synego Slide

¿Cuál es la diferencia con los correderos baratos (High-Design)?

La diferencia es abismal. En los sistemas baratos (High-Design) se usan cepillos por donde pasa el aire. En Synego Slide se usa un contorno de sellado de goma continuo (como en un refrigerador). Es una pared cálida de verdad, no solo una barrera contra la lluvia.

¿Es mejor que las puertas oscilobatientes (PSK)?

Sin duda. Los viejos portales PSK (que se inclinan y deslizan como la puerta de un autobús) son difíciles de manejar, a menudo se estropean y tienen umbrales altos. Synego Slide no tiene estos problemas: no se inclina, simplemente se desliza, y es mucho más difícil dañar el mecanismo.

¿Qué tan difícil es forzarla?

Gracias al mecanismo de presión, la hoja no se puede forzar con una palanca como una ventana normal. La clase de resistencia al robo alcanza RC2. Es un obstáculo serio para un ladrón, especialmente combinado con vidrio laminado antivandálico.

¿De qué tamaño puede ser la puerta?

Recomendamos hojas de hasta 1,5–1,6 metros de ancho y hasta 2,5 metros de alto. Si la apertura es más ancha de 4 metros, es mejor considerar el sistema Geneo HST, ya que la herraje de Synego tiene límites de peso del vidrio.

¿El umbral quedará al nivel del suelo?

No, hay un umbral técnico (marco) sobre el que hay que pasar (altura de unos 6-7 cm). Si necesita un umbral "cero" absolutamente plano para silla de ruedas—necesita el sistema Geneo HST, pero cuesta significativamente más.

¿Se requiere ajuste?

Mucho menos frecuentemente que para los portales PSK. El mecanismo Synego Slide es autocentrante. Lo principal es mantener el carril inferior limpio de escombros de construcción y arena.

¿Necesita ayuda para elegir?

Solicite una consulta gratuita de nuestros especialistas. Le devolveremos la llamada en un momento conveniente y discutiremos cómo podemos ayudarle.

Todos los precios están en euros e incluyen IVA y costos de entrega. Los precios tachados corresponden a los precios originales del producto según el precio de venta recomendado por el fabricante (si está disponible). En caso de prepago, los precios y ofertas serán válidos durante 7 días desde la confirmación del pedido; posteriormente, estarán sujetos a cambios. Zona de entrega: España.

Los colores, acristalamientos y tamaños pueden diferir de las imágenes. No se garantiza el realismo de la imagen.

Algunos productos e imágenes relacionadas en videos pueden contener artículos descontinuados e información.

1 Los tiempos de producción pueden aumentarse bajo ciertas circunstancias (p. ej., diseño especial, períodos de vacaciones de la empresa, etc.). Por razones técnicas, no podemos tener en cuenta estas extensiones al calcular los tiempos de producción. Debido a circunstancias externas en la adquisición de materias primas como acero, PVC y madera, el tiempo de producción de su pedido puede aumentarse. Por favor, tenga esto en cuenta. Esto no le da derecho a exigir cambios en los precios contractuales o la posibilidad de rescindir el contrato de compraventa.

Como cliente de Ventanas Fraktal, recibirá recomendaciones por correo electrónico, de las cuales puede darse de baja en cualquier momento siguiendo el enlace adjunto. Puede encontrar información más detallada en nuestra Política de privacidad.