Especificaciones Técnicas
Detalles
Sistema corredera hermético de nueva generación que combina la comodidad del deslizamiento con la estanqueidad de una ventana abatible. Ideal para terrazas panorámicas donde se requiere silencio y protección contra condiciones climáticas extremas.
Parámetros constructivos del sistema:
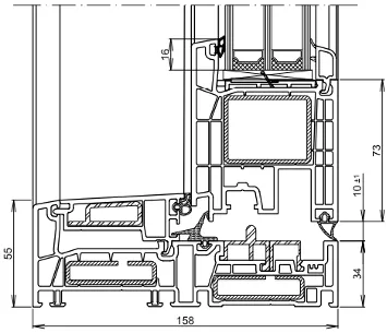
- Profundidad de montaje: 76 mm (marco 158 mm).
- Material: PVC Xtrem con mayor resistencia a la radiación UV, tecnología Greenline (sin plomo).
- Mecánica de apertura: Esquema innovador de "deslizamiento con presión" - al cerrar, la hoja se presiona firmemente contra el marco en todo el perímetro.
- Sellado: 3 juntas de EPDM de alta calidad que proporcionan hermeticidad al nivel de las ventanas oscilobatientes.
- Refuerzo: Refuerzo de acero especial para garantizar la rigidez en acristalamientos panorámicos.
- Tren de rodaje: Carros con rodillos con función de presión suave, que proporcionan facilidad de manejo de hojas de hasta 250 kg.
Opciones de acristalamiento y relleno:
- Espesor máximo de relleno: hasta 50 mm.
- Tipos de relleno: Acristalamientos de doble cámara de bajo emisivo, vidrio laminado acústico, vidrios de seguridad clase P4A.
Dimensiones máximas de las estructuras:
- Altura máxima de la hoja: hasta 2400 mm.
- Anchura máxima de la hoja: hasta 2000 mm.
- Anchura total de la estructura: hasta 4000 mm (esquema A: una hoja activa, una fija).
- Opciones de color: Disponible toda la paleta Kömmerling, incluyendo laminados con textura de madera y acabados mate.
Características certificadas:
- Aislamiento térmico del sistema (Uw): hasta 1,1 W/(m²·K) (dependiendo del acristalamiento).
- Aislamiento acústico (Rw): hasta 45 dB.
- Resistencia antirrobo: Clase RC2 (gracias a la presión fiable y los elementos de cierre especiales).
- Permeabilidad al aire: Clase 4 (Máxima según DIN EN 12207).
- Estanqueidad al agua: Clase 9A (DIN EN 12208).
- Resistencia al viento: Clase B3/C2.
Tecnología
Hermeticidad del 100%
Confort
Silencio excepcional
Intuitividad
Facilidad de manejo
Kömmerling PremiSlide 76
Sistema corredera hermético de nueva generación que combina la comodidad del deslizamiento con la estanqueidad de una ventana abatible. Ideal para terrazas panorámicas donde se requiere silencio y protección contra condiciones climáticas extremas.
Más Ideas e Inspiración
Estos son algunos ejemplos de nuestro trabajo con el perfil Kömmerling PremiSlide 76. Toda esta inspiración es para usted y solo para usted.
Estamos trabajando en mantener los datos actualizados. Contáctenos si necesita materiales actualizados.
Opciones de Financiación
Disfrute de su compra ahora y páguelo a plazos utilizando nuestros servicios de financiación.
Más detallesNo Olvide Añadir
Elementos adicionales y accesorios que harán su hogar aún más confortable
Mosquiteras
Manillas con Cerradura
Laminación
Elementos Decorativos
Compare con Perfiles Similares
Soluciones alternativas de otros fabricantes
Kömmerling EuroFutur Elegance
Kömmerling Xtrem 76 AD
Kömmerling Xtrem 76 MD
Rehau High-Design Slide
Rehau Synego Slide
Rehau Panorama Swing
Dejar una reseña
Reseñas de clientes
Descubra lo que la gente dice al respecto
Aún no hay reseñas. ¡Sea el primero!
FAQs
Preguntas Frecuentes sobre Kömmerling PremiSlide 76
¿Por qué PremiSlide 76 se considera el sistema corredera más hermético?
A diferencia de las correderas convencionales con cepillos, PremiSlide 76 utiliza la tecnología de presión de la hoja contra juntas de goma (como en las ventanas estándar). Esto elimina completamente las corrientes de aire y las filtraciones incluso durante las tormentas de Gota Fría en la costa.
¿Qué tan efectivo es este sistema para bloquear el ruido de la calle?
Gracias a la presión hermética y la posibilidad de instalar acristalamientos de hasta 50 mm de espesor, PremiSlide 76 reduce el ruido hasta 45 dB. Esto lo convierte en la mejor opción para dormitorios y salones que dan a calles turísticas ruidosas o paseos marítimos.
¿Cómo se comporta el sistema con el calor extremo de España?
El perfil está fabricado con la fórmula Xtrem, especialmente adaptada para la alta radiación UV. El material no se expande críticamente ni amarillea, y la estructura multicámara mantiene el frescor en el interior, reduciendo los gastos de climatización.
¿En qué se diferencia PremiSlide de las puertas elevadoras correderas (HST)?
PremiSlide es una solución más compacta que combina facilidad de manejo y hermeticidad con menor profundidad de marco. Es más económica que los sistemas HST, pero proporciona un nivel comparable de aislamiento térmico y confort para huecos de tamaño medio.
¿Es difícil de manejar esta puerta para personas mayores o niños?
La mecánica Eco-Slide está diseñada para un deslizamiento máximamente suave. Al girar la manilla, la hoja se separa suavemente del marco por sí sola, después de lo cual rueda prácticamente sin esfuerzo. Es uno de los sistemas más ergonómicos de la gama Kömmerling.
¿Es adecuado PremiSlide para instalación en obra nueva y reformas?
Sí, la profundidad de montaje universal de 76 mm permite integrar el sistema en cualquier tipo de pared. Es frecuentemente utilizado por arquitectos en proyectos modernos de villas como sustituto de las puertas de balcón estándar para mejorar la clase de eficiencia energética.









