Veka Softline 82 es un sistema de clase premium diseñado para casas pasivas y chalets con altos requisitos de ahorro energético. Gracias al mayor ancho de montaje de 82 mm y la estructura de 7 cámaras del marco, el perfil proporciona valores récord de aislamiento térmico, previniendo pérdidas de calor incluso en los inviernos más severos. La presencia del tercer circuito de sellado (central) divide el espacio interior en dos cámaras, creando una barrera de aire adicional y protegiendo de forma fiable los herrajes de la humedad.
Como todos los sistemas Veka, Softline 82 se fabrica con paredes de clase «A» (grosor 3 mm), lo que garantiza una rigidez y durabilidad excepcionales de la estructura. El galce aumentado permite instalar acristalamientos de hasta 52 mm de grosor con un alojamiento profundo del vidrio (25 mm), lo que minimiza el riesgo de formación de condensación en los bordes y mejora significativamente el aislamiento acústico del espacio.
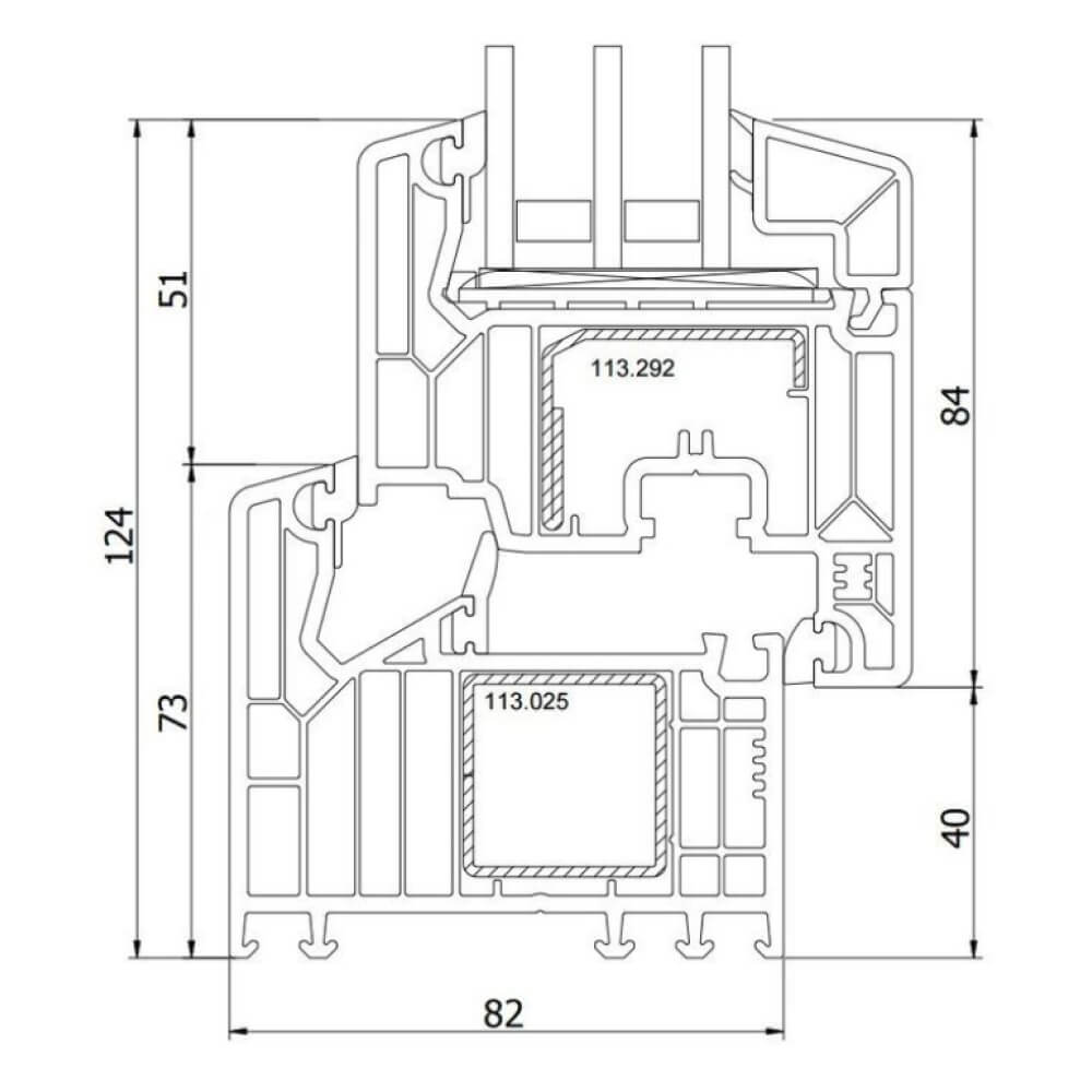
Especificaciones Técnicas
Detalles
Sistema insignia de eficiencia energética. Perfil de 7 cámaras con 82 mm de ancho y tres circuitos de sellado (MD) para máximo ahorro de calor.
Parámetros constructivos del sistema:
- Profundidad de montaje: 82 mm (estándar de eficiencia energética).
- Número de cámaras: 7 cámaras en el marco / 6 cámaras en la hoja. El sistema multicámara bloquea eficazmente la convección de aire dentro del perfil.
- Clase de perfil: Clase «A» (pared de 3 mm). Estabilidad y resistencia según las estrictas normas alemanas.
- Sistema de sellado: MD (Mitteldichtung) — tres circuitos de sellado. El labio central de la junta en el marco aumenta la hermeticidad.
- Refuerzo: Potente perfil cuadrado cerrado en el marco. Proporciona la estática necesaria para acristalamientos triples pesados.
Opciones de acristalamiento y relleno:
- Rango de grosor de relleno: de 24 mm a 52 mm.
- Profundidad de alojamiento del vidrio: 25 mm (tecnología de alojamiento profundo para protección contra congelación de bordes).
- Capacidades especiales: Posibilidad de encolar el acristalamiento en la hoja para crear estructuras de gran tamaño.
Geometría y dimensiones (Ventana):
- Altura del conjunto de perfiles: 124 mm.
- Construcción de la hoja: Geometría especial del solape que oculta la junta y proporciona un aspecto estético.
- Termotecnia del galce: Construcción isotérmica del galce que mejora la distribución de temperaturas dentro del perfil.
Características certificadas (según DIN EN 14351-1):
- Aislamiento térmico del perfil (Uf): 1,0 W/m²K (cumple requisitos para casas pasivas).
- Resistencia térmica (R0): 1,06 m²°C/W o superior (con termomódulo en el refuerzo).
- Aislamiento acústico (Rw): hasta 47–50 dB (clase de protección acústica 5).
- Resistencia antirrobo: hasta clase RC3.
- Permeabilidad al aire y protección contra lluvia: Clase 4 / 9A (máxima protección gracias al circuito central).
3 circuitos de sellado
Sistema MD
Efecto termo
Máximo calor
Sin condensación
Alojamiento profundo
Veka Softline 82
Sistema insignia de eficiencia energética. Perfil de 7 cámaras con 82 mm de ancho y tres circuitos de sellado (MD) para máximo ahorro de calor.
Más Ideas e Inspiración
Estos son algunos ejemplos de nuestro trabajo con el perfil Veka Softline 82. Toda esta inspiración es para usted y solo para usted.
Estamos trabajando en mantener los datos actualizados. Contáctenos si necesita materiales actualizados.
Opciones de Financiación
Disfrute de su compra ahora y páguelo a plazos utilizando nuestros servicios de financiación.
Más detallesNo Olvide Añadir
Elementos adicionales y accesorios que harán su hogar aún más confortable
Mosquiteras
Manillas con Cerradura
Laminación
Elementos Decorativos
Compare con Perfiles Similares
Soluciones alternativas de otros fabricantes
Veka Softline 70
Veka Softline 76
Veka AluConnect
Kömmerling EuroFutur Elegance
Kömmerling Xtrem 76 AD
Kömmerling Xtrem 76 MD
Dejar una reseña
Reseñas de clientes
Descubra lo que la gente dice al respecto
Aún no hay reseñas. ¡Sea el primero!
FAQs
Preguntas Frecuentes sobre Veka Softline 82
¿Para qué sirve el tercer circuito de sellado (MD)?
El circuito central divide el espacio entre el marco y la hoja en dos cámaras. La cámara exterior «húmeda» evacua el agua, mientras que la interior «seca» protege los herrajes de la humedad y la corrosión. Además, crea una barrera adicional contra el sonido y las corrientes de aire.
¿Es adecuado este sistema para una «casa pasiva»?
Sí, es uno de los pocos sistemas de PVC que, con la configuración adecuada (acristalamiento cálido, insertos térmicos), alcanza valores de Uw ≤ 0,8 W/m²K, lo cual es necesario para la certificación de casa pasiva.
¿No será el perfil demasiado voluminoso?
A pesar del ancho de 82 mm, la altura visible de los travesaños (124 mm) es comparable a los sistemas convencionales. El diseño del perfil está realizado en el estilo clásico Softline con bordes redondeados, lo que aligeriza visualmente la estructura.
¿Qué grosor máximo de vidrio se puede instalar?
El sistema está diseñado para acristalamientos de hasta 52 mm. Esto permite usar una combinación de vidrios gruesos (6 mm), vidrio laminado y marcos espaciadores anchos, obteniendo una ventana con aislamiento acústico como el de una pared de ladrillo.
¿Hay que reforzar los herrajes para estas ventanas?
Las ventanas con perfil de 82 mm y acristalamiento de 52 mm resultan pesadas. Utilizamos obligatoriamente grupos de bisagras reforzados (por ejemplo, Roto NX o Siegenia Titan), diseñados para un peso de hoja de 130 kg o más.
¿En qué se diferencia del Softline 76, si también tiene 25 mm de alojamiento?
Softline 82 tiene 7 cámaras frente a 5, tres circuitos de sellado de serie y mayor anchura. Esto proporciona un aumento del aislamiento térmico del perfil de aproximadamente el 10-15% y mejor hermeticidad en zonas de viento extremo.









